项目介绍
北京顺义东地郝家住宅(1272)
- 建筑地址:北京市顺义区东地村
- 建筑风格:高端定制,现代
- 建筑尺寸:16.1*12.2
- 结构形式:砖混
- 建筑面积:398.42㎡
- 土建造价:53.7万
项目概况
本项目位于北京顺义,业主郝先生在网上看到了我们,郝先生想把家里的老房子翻建一下,与我们取得联系之后,我们便约好了时间去现场,经过现场实测实量,无人机拍摄地形,此效果为最终效果,期待落地。

【鸟瞰图1△】

【鸟瞰图2△】
户型设计
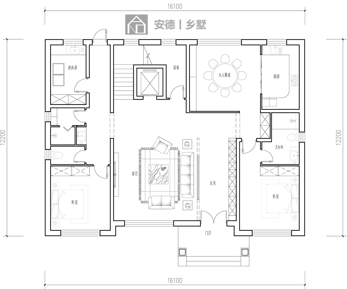
【一层平面图△】
整体一层布局为客厅,餐厅,厨房,卧室两间,卫生间两间,洗衣房。

【二层平面图△】
整体二层布局为卧室四间,起居室,卫生间两间,书房。
效果设计整体建筑采用现代风格设计,整体以白色色调为主,大气时尚,视觉效果拉满。

【效果1△】

【效果2△】

【效果3△】

【效果4△】

【效果5△】

【效果6△】
END
上一篇:北京房山孟家住宅(1278)
下一篇:平谷上纸寨周家别墅(1271)