项目介绍
北京房山刘家住宅(1279)
- 建筑地址:北京市房山区周口店镇车厂村
- 建筑风格:高端定制,现代
- 建筑尺寸:18*19.9
- 结构形式:砖混结构
- 建筑面积:213.46㎡
- 土建造价:27.8万
项目概况
本项目位于北京市房山区周口店镇车厂村,业主刘先生是我们之前的客户,刘先生想把家里的第二处老房子翻建一下,与我们取得联系之后,我们便约好了时间去现场,经过现场实测实量,此效果为最终效果,期待落地。

【鸟瞰图1△】

【鸟瞰图2△】

【鸟瞰图3△】

【鸟瞰图4△】
户型设计
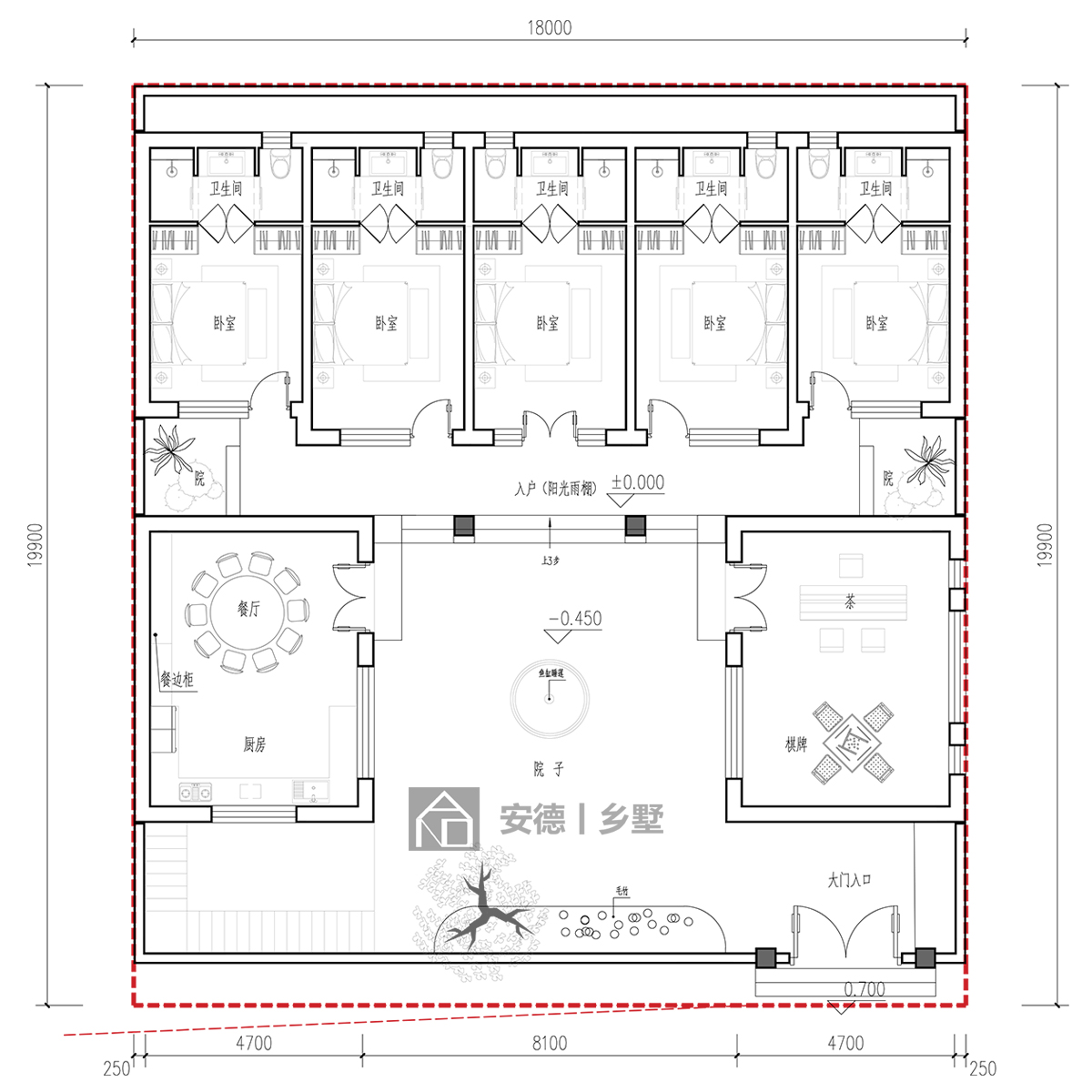
【一层平面图△】
整体一层布局为厨房、餐厅、棋牌室、茶室、卧室5间、私卫5间。
效果设计整体建筑采用现代风格设计,整体以白色色调为主,大气时尚,视觉效果拉满。

【效果1△】

【效果2△】

【效果3△】

【效果4△】

【效果5△】

【效果6△】

【效果7△】
END
上一篇:北京顺义邢家公寓(1281)
下一篇:北京房山孟家住宅(1278)