项目介绍
北京房山曹家别墅(944)
- 建筑地址:北京市房山区曹章
- 建筑风格:新中式,高端定制,中式
- 建筑尺寸:17X19
- 结构形式:砖混结构
- 建筑面积:326㎡
- 土建造价:50万
项目概况该项目位于北京市房山区,该处为业主的老房子翻建,主要满足日常居住和待客的需求,项目东侧为一个村里的大坑,绕开为村内主路,不过按照当地风水说这种情况属于聚财,西侧为二层的邻居,南侧邻居为二层,北侧为一层邻居。

【鸟瞰△】
户型设计

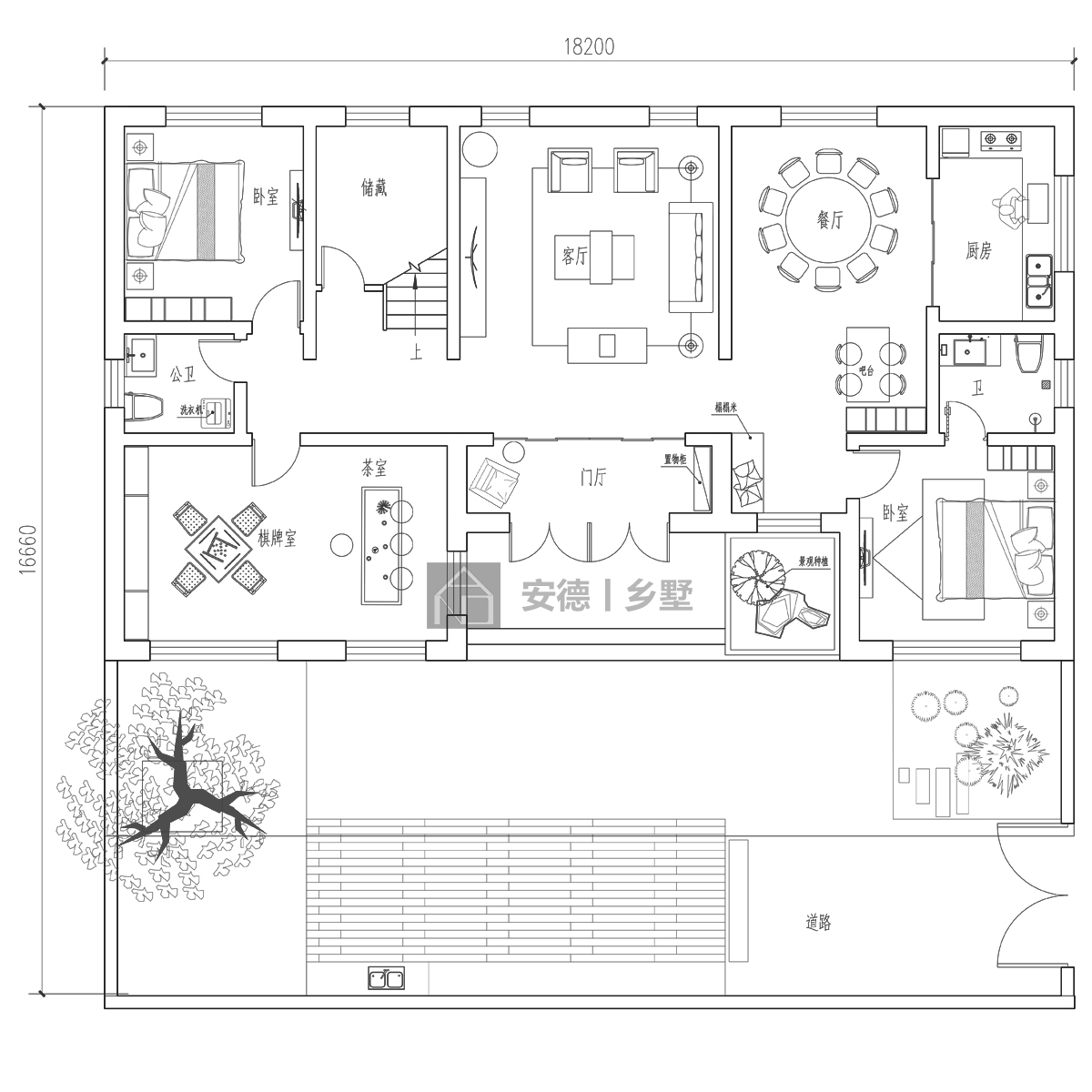
【一层户型图△】
由于风水上面的讲究,也是客观场地需要,从东南角入户,进入大门为一个屏风,基地正南方为防腐木质平台,可以做为休闲空间,会客就餐使用,建筑整体较为对称,中轴线布置入户台阶,门厅和主要的会客空间,东北角为厨房和餐厅相互连接,东南角为带独立卫生间的老人房,老人房门口位置有一个小的休息空间,可以欣赏院子中的景观。一层西侧依次为茶室棋牌休闲空间,公卫和一个客房。楼梯下方可以用作储藏。

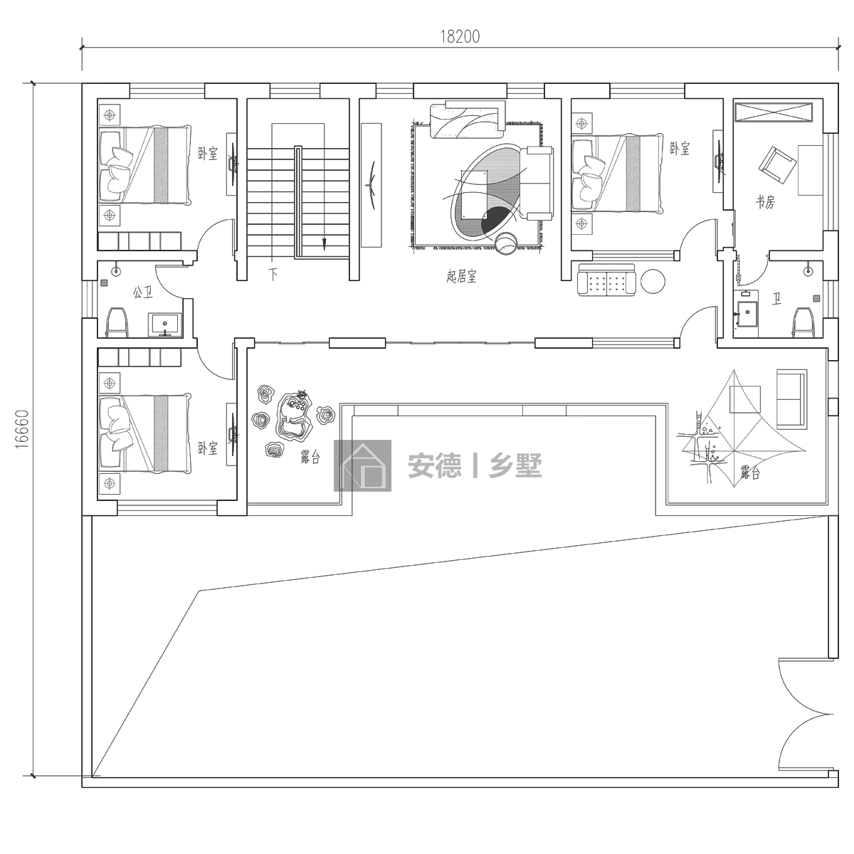
【二层户型图△】
二层主要为业主居住空间,共有三个独立的卧室,其中东侧的主卧拥有独立的书房和卫生间,中部为家庭起居室,过廊空间丰富多样,室内外廊道让空间充满的趣味性,南侧东西分别为两个大的露台,业主也非常中意这样的空间感觉。
效果设计建筑为新中式风格,立面采用面砖、真石漆和木装饰打造传统建筑的厚重感。面砖不同于青砖,细微处变化让整体造型更具美感。窗户周围木装饰,木材自带的自然感让玻璃更加通透和灵动。侧面造型通过白色真石漆和面砖打造空间自如转变。

【效果1△】

【效果2△】

【效果3△】

【效果4△】

【景观1△】

【南立面图△】

【北立面图△】

【西立面图△】

【东立面图△】
END
上一篇:北京房山刘家住宅(1279)